
Проект выполнен в рамках учебного задания. Дизайн-проект основывается на собранной аналитике. Целевая аудитория кластера студенты направления дизайна среды и интерьера.
В проекте мне хотелось передать атмосферу серьезной, но творческой профессии. Мне было важно наполнить пространство цветом, но также и сохранить визуальную чистоту и «пустоту».
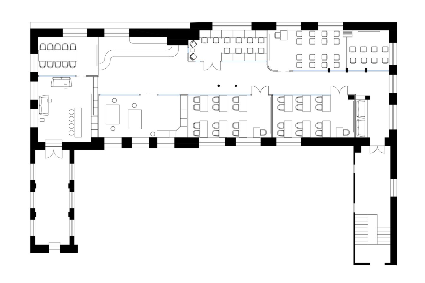
Аксонометрия & Планировка
Визуализации
Вход. Coffee point
Коворкинг для группы людей
Общая зона отдыха
Кабинет арт-практики
Проект мебели для кабинета в профиле
Коворкинг для одного человека. Вечерняя визуализация
Компьютерные классы для разных пользователей


Трансформирующийся лекционный класс
Второй вход. Общая зона