
В ходе работы над проектом магазина «Гусевской хрусталь» я решила разработать стеллаж для хрусталя, который поможет изделиям выделиться и предстать в своем лучшем облике. Стеллаж будет со встроенным светом, чтобы хрусталь блестел и его лучше было видно. По внешнему виду, стеллаж будет белого цвета, что позволит ему гармонично вписаться в любой интерьер, выглядеть эстетично и сфокусировать внимание на продукции.

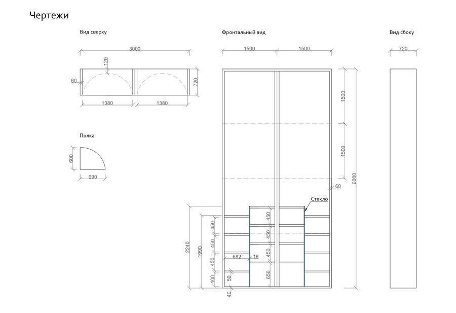
Стеллаж предназначен для экспонирования небольших ваз, бокалов и рюмок, каждая полка или целый отдел может быть отведен определенной коллекции


Материалы: Корпус сделан из МДФ, полки — оргстекло, также используется обычное стекло и светодиодная лента


Блоки 1500 мм в высоту можно переставлять, добавляя нужное количество полок по желанию, и, тем самым, делая стеллаж функциональным в любом интерьере