
Эта квартира — место спокойствия и вдохновения для своей владелицы живущей между Лиссабоном и Москвой. Она служит ей одновременно творческой мастерской и местом отдыха после поездок.

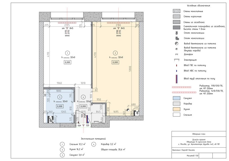
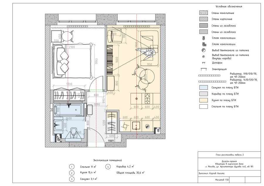
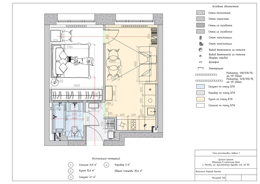
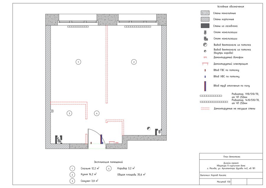
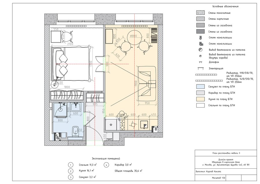
При работе над зонированием пространства было решено расширить зону кухни-гостиной за счёт площади коридора. Были рассмотрены различные варианты организации передвижения внутри квартиры, сохраняя расположение основных зон. Четвёртый вариант планировки сочетает в себе удачные решения предыдущих вариантов.
Интерьер квартиры сочетает современный минимализм с уютом винтажных предметов. Преобладание светлых оттенков, натуральные древесные поверхности, льняные ткани и мягкое освещение наполняют помещение ощущением гармонии и комфорта. Элементы интерьера создают атмосферу живого пространства, отражающего индивидуальность владельца.