
Исходные данные
Вид

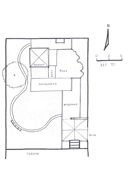
План

Анализ ситуации
Расположение: г. Санкт-Петербург, Выборгский район, в северной части города. В районе удовлетворительная экологическая обстановка.
Особенности территории: рельеф равномерный, прямоугольной формы, участок расположен в районе малоэтажной жилой застройки, в окружении четырех зданий 5-7 этажей. Повышенной загазованности в районе проспекта не наблюдается.
Назначение: сад во дворе ресторана японской кухни.
Территория используется круглогодично.
Архитектурно-планировочное задание на разработку проекта
1. Устройство садовых дорожек 2. Установка МАФов 3. Обустройство рокариев 4. Посадка деревьев и кустарников 5. Посадка цветов, многолетних трав
План функционального зонирования

1. Входная группа в сад 2. Пруд с мостом 3. Беседка для чайных церемоний 4. Место отдыха/созерцания на скамье 5. Прогулочная зона по саду
Архитектурно-планировочное решение
дорожно-тропиночная сеть

определение растительных объемов

План Autocad

Наполнение

Вечнозеленые, неприхотливые, теневыносливые растения
Подчеркивание красоты каждого сезона, смена облика ландшафта согласно времени года: Весна — цветущие Лето — умиротворенность зеленого цвета Осень — взрыв цвета, яркие цвета листьев Зима — растения с красивыми силуэтами и формами под снегом (хвойники)
Слоеные, ярусные, искривленные силуэты растений
Для площадки и моста — дерево, для мощения — камень, насыпные дорожки
На территории валуны произвольной формы
МАФы — японские ворота Тории, скамья и уличные фонари в минималистичном стиле
Визуализация площадки для отдыха
Визуализация растительных объемов от руки