
Ресторан «Морошка» — место, где сочетается гастрономия русского Севера и атмосфера дома. Это дизайн-проект современного ресторана северной кухни с дружелюбной атмосферой днём и камерной элегантностью вечером, в котором важны не только авторские гастрономические блюда, но и комфорт, эстетика и высокий уровень сервиса.
Общая информация
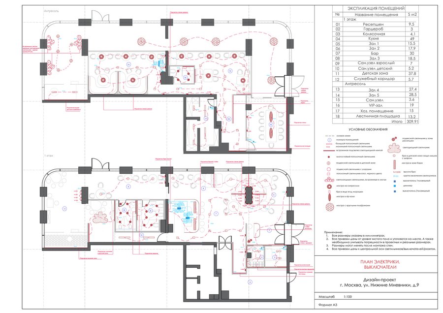
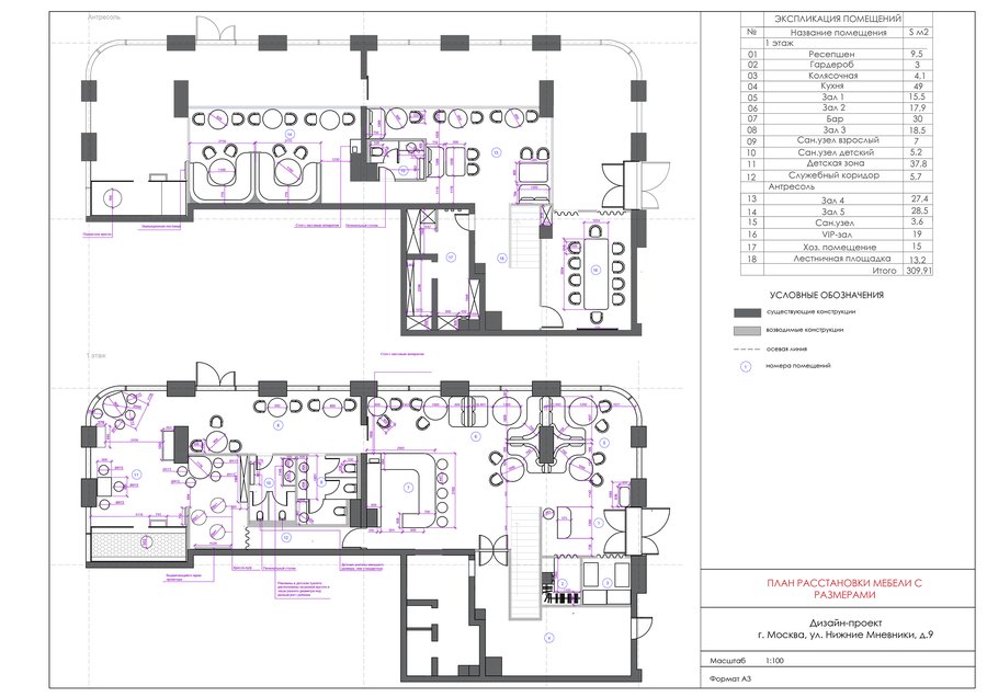
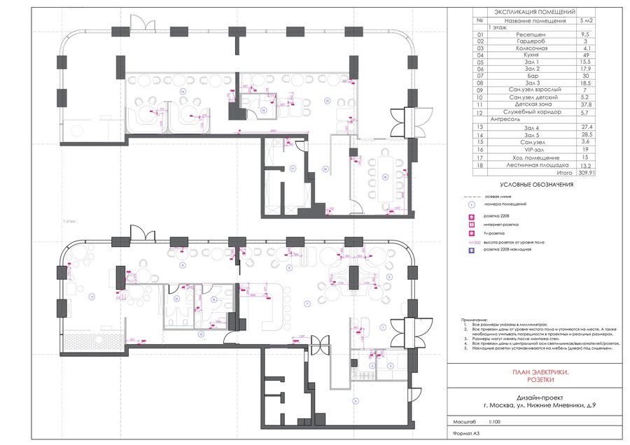
- Объект находится в районе Хорошёво-Мнёвники на западе Москвы практически на самом берегу Москва-реки в ЖК бизнес-класса «Остров». — Территория комплекса обладает высшим рейтингом экологического благополучия и окружена 650 гектарами парковых пространств. — До станции метро «Терехово» всего 1-10 минут в зависимости от расположения корпуса. — Площадь помещения: 203 м² — Максимальная высота потолков: 6000 м
Концепция
Целевая аудитория:
Днем — это мамы с детьми, которые ценят безопасное пространство, здоровое меню и возможность спокойного приема пищи, зная, что из ребенок под присмотром.
Вечером — семьи, пары и небольшие компании, ищущие уютное место для ужина в шаговой доступности от дома.
Кухня:
Днем — детские блюда без сахара и минимальной термообработкой, мини-дегустации как у взрослых, только проще, «Меню для мамы», kids bar, а также основное меню с акцентом на продукты русского Севера и Сибири.
Вечером — современная северная кухня с акцентом на ягоды, рыбу, дичь. Дегустационные сеты на двоих. Семейные блюда на компанию. Бар — авторские коктейли на ягодах и травах, безалкогольные миксы, коллекция вин с акцентом на «северные» регионы и настоек.
Сервисы:
Из доступных сервисов днем: детская комната с аниматором/няней в определенные часы, удобная колясочная, детские стульчики., быстрая подача блюд, сервис «няня за столом», мастер-классы для детей и взрослых (в определенные дни) и воскресные бранчи.
Вечером — барные мастер-классы и дегустационные сеты от шефа на открытой кухне в зале.

Moodboard
Доска материалов
Планировочное решение с зонированием
Визуализации
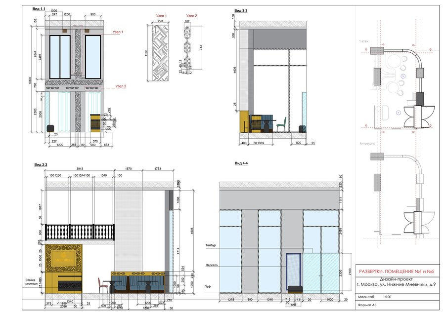
Зона ресепшен и 1 зал
Зал на первом этаже у входа
Бар


Зона посадочных мест возле бара со вторым светом
Зал рядом с детской зоной и сан.узлами; взрослый с/у
Детская зона
Антресоль: 1 зал
VIP-зал на втором этаже
Техническая документация