
Проект бутика итальянского парфюмерного дома Tiziana Terenzi основан на идее синтеза чувственного опыта и архитектурной выразительности. Основная концепция — «ароматы космоса», отсылающая к коллекции бренда, вдохновленной созвездиями и стихиями.
Фасад магазина выполнен в классическом стиле, что подчеркивает аристократичность бренда, а современные витрины создают контраст между исторической архитектурой и футуристичным световым дизайном. Центральная витрина оформлена как портал во вселенную ароматов: в черном глянцевом пространстве парят сферические элементы, напоминающие планеты, а стеклянные цилиндры служат подставками для парфюмов. LED-подсветка холодного тона создает ощущение глубины и бесконечности.

Витрина магазина
Интерьер бутика решен в минималистичном ключе с использованием акрилового камня, стекла и полированного металла, что отражает чистоту и прозрачность парфюмерного искусства. Пространство предназначено не только для продажи, но и для дегустации ароматов, что превращает покупку в эмоциональный ритуал.
Философия бренда
Эмоции: каждый аромат — это зафиксированный момент, воспоминание, впечатление. Метафора путешествия: ароматы — это не просто запахи, а путешествие души. Космос и природа: у бренда образ космоса (луна, кометы, звёзды), а также природа (огонь, вода, земля, воздух).

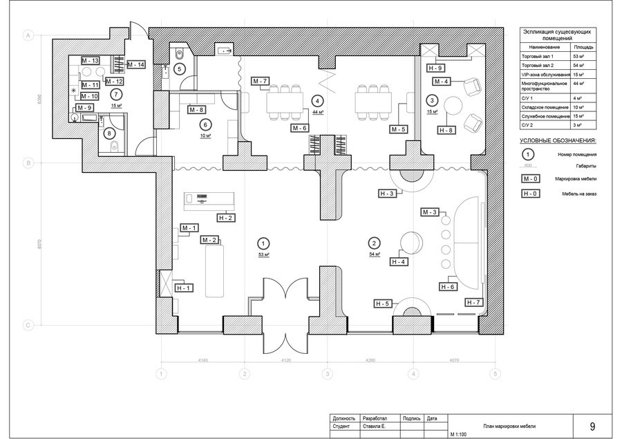
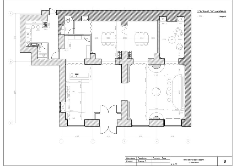
Зонирование и план помещения
Планировочная структура бутика выстроена на контрасте открытого и камерного пространства, что отражает философию бренда — путь от первого впечатления к глубинному переживанию аромата.
Первое помещение представляет собой зону быстрого обслуживания с входом и кассой. Здесь располагаются диффузоры, свечи и уходовая косметика — товары, которые покупатели могут выбрать спонтанно.
Через арочный проём посетитель попадает во второй зал, посвящённый парфюмерии. Арка служит переходом в более интимное и сосредоточенное пространство, где каждый аромат воспринимается как личный опыт.
Из второго зала можно пройти в VIP-комнату, предназначенную для индивидуальных консультаций и подбора ароматов. Рядом находится многофункциональная комната, где проходят мастер-классы и презентации новых коллекций. Она имеет два входа из разных залов, что позволяет объединять пространство для проведения крупных мероприятий.
Такое зонирование создаёт плавный переход от открытой розничной среды к миру личных ощущений и вдохновения, воплощая философию Tiziana Terenzi о том, что каждый аромат — это зафиксированный момент души.
Визуализации пространства
Зал со свечами и диффузорами
Зал с парфюмерией
Зона для мастер-классов и презентаций коллекций
VIP-зона обслуживания
Альбом чертежей