Original size 1240x1750

Дизайн проект для цветочного магазина «СОБРАН В САДУ»

PROTECT STATUS: not protected
11

«Собран в саду» — это современный цветочный бренд, вдохновлённый идеей естественной красоты и спокойствия в городской среде. Он про атмосферу, про состояние, а не просто про букеты. Это не стандартный цветочный магазин, а пространство-вдохновение, где человек может остановиться, почувствовать аромат, услышать лёгкое пение птиц и просто быть.

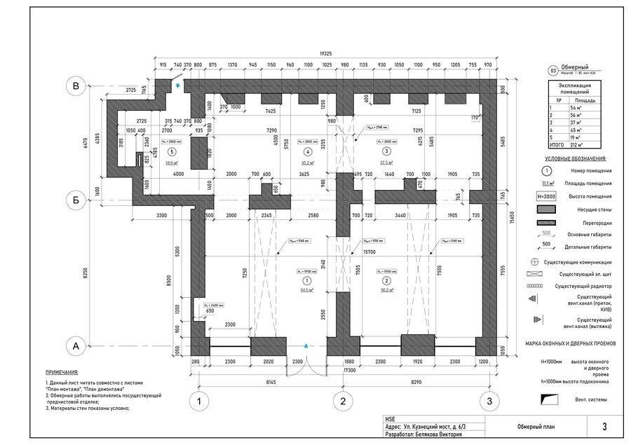
Анализ территории

post

На улице много fashion-бутиков, концепт-сторов, магазинов подарков и сувениров, а также кафе и ресторанов. Цветочные точки есть, но они работают в классическом формате без яркой концепции.

Аудитория: В районе встречаются туристы, офисные сотрудники и креативный класс.

Возможности для цветочного бутика: Цветы здесь — не просто товар, а эмоция и опыт. Магазин может стать «оазисом» на шумной улице: место для вдохновения, фотозона, площадка для мастер-классов. Цветы легкопревращаются в импульсные подарки.

Выбор бренда

post

«Собран в саду» — это современный цветочный бренд, вдохновлённый идеей естественной красоты и спокойствия в городской среде. Он про атмосферу, про состояние, а не просто про букеты. Это не стандартный цветочный магазин, а пространство-вдохновение, где человек может остановиться, почувствовать аромат, услышать лёгкое пение птиц и просто быть. Философия бренда — замедлиться, почувствовать природу и себя, даже если вокруг центр мегаполиса. Каждая деталь — от цветовой палитры до материалов — отражает идею естественности, света и тактильности.

Почему я выбрала этот бренд: Потому что он близок мне по духу. Мне интересно создавать интерьеры, в которых человек не только видит красоту, но и чувствует её — через звук, свет, запах и материал. «Собран в саду» объединяет эстетику, природу и эмоции. Это бренд с душой, и его философия идеально ложится в пространство на Кузнецком мосту — в центре города, но с ощущением покоя и жизни.

Целевая аудитория

post

- Женщины и мужчины 25–40 лет — аудитория, которые ценят эстетику, сервис, уникальность, эмоции, «купить не просто цветы, а опыт». - Творческая аудитория / люди из креативных индустрий, 25-35 лет, преимущественно женщины, которые ищут необычные места и эстетические впечатления.

Цветы здесь — не просто букет, а «маленький ритуал для себя»: пауза, замедление, прикосновение к природе в шуме Москвы. Для многих это точка эмоциональной перезагрузки в центре делового квартала. Магазин должен восприниматься как «оазис» в шумном центре: выйти из офиса/театра бутика и на минуту попасть в сад.

Цветы = медитация, красота, терапия.

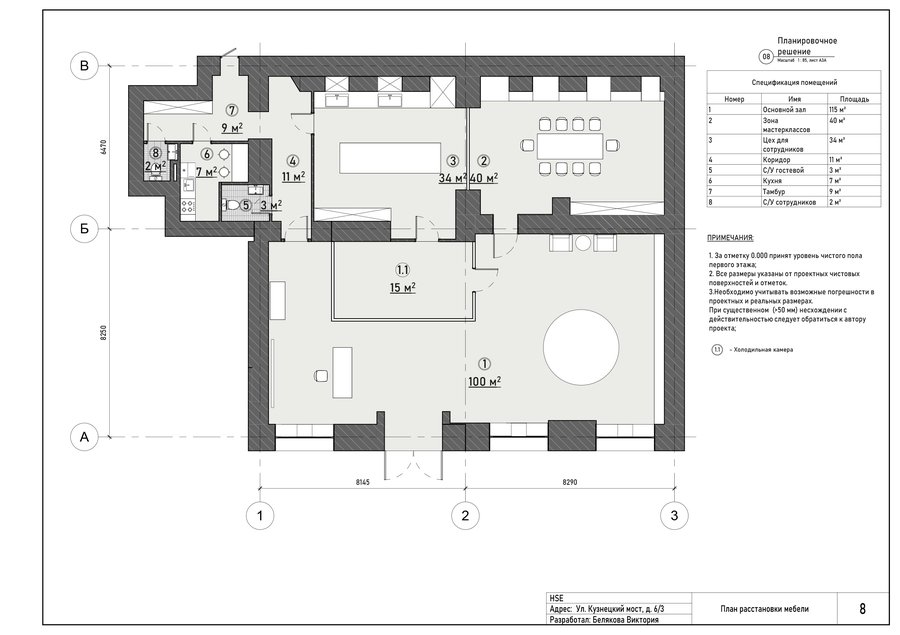
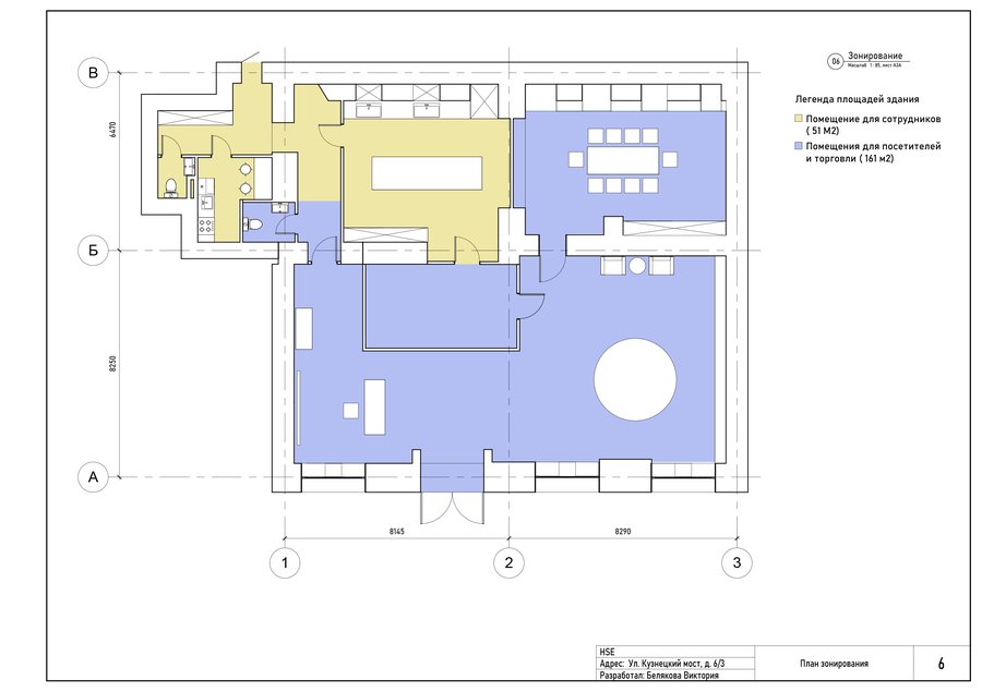
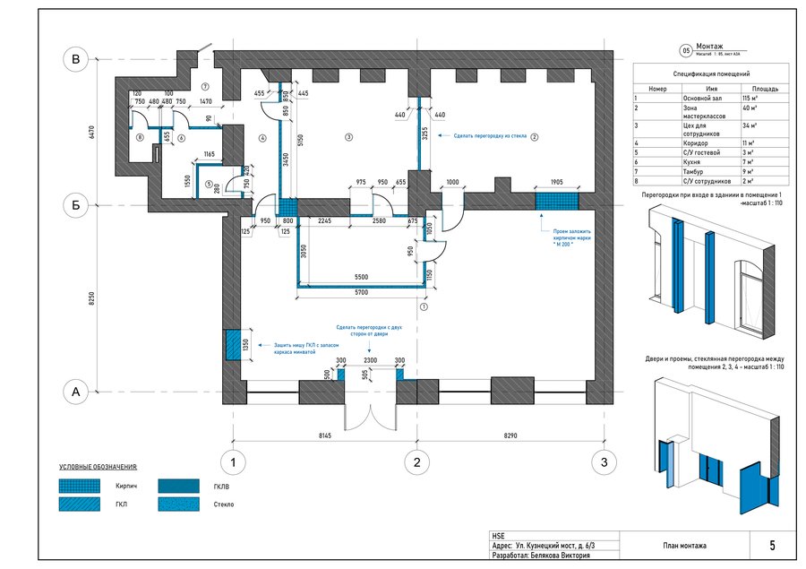
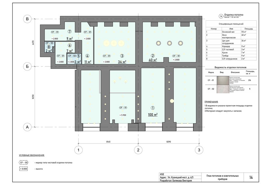
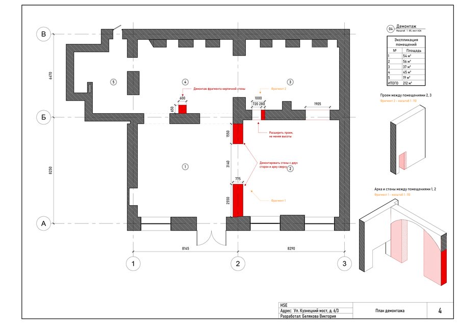
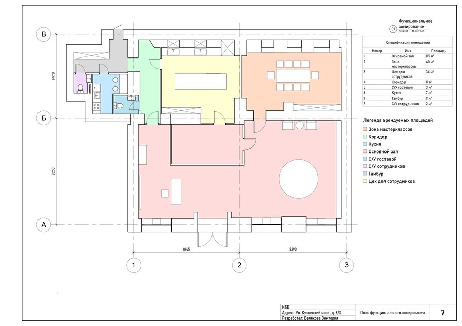
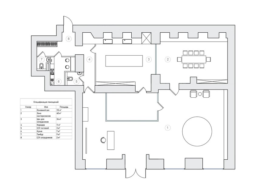
Зонирование и планировка

Зонирование помещений

Референсы и аналоги материалов

Референсы и аналоги материалов

Визуализации

0

Основной зал

0

Основной зал

0

Зона мастер классов

0

Зона для сотрудников

Витрина

Original size 2480x1750

Чертежи

0
0
Дизайн проект для цветочного магазина «СОБРАН В САДУ»
11
We use cookies to improve the operation of the website and to enhance its usability. More detailed information on the use of cookies can be fo...
Show more