
Техническое задание
Данный дизайн-проект был разработан для одинокого мужчины 26 лет, артиста балета.
Молодой человек предпочитает спокойный и размеренный отдых, дома любит слушать расслабляющую музыку.
Про себя отмечает, что он человек спокойный, педантичный, любит красивые вещи. Также артист часто путешествует и уезжает на гастроли. Вечера предпочитает проводить за чтением книг, посещением театров, музеев и выставок.
Концепция:
Современный элегантный интерьер, выполненный в спокойных ненавязчивых тоннах, отличительной особенностью которого является сочетание разных форм, тканей и фактур.

Moodboard

Референсы
Текстурная доска
Коллаж-концепция
Визуализации
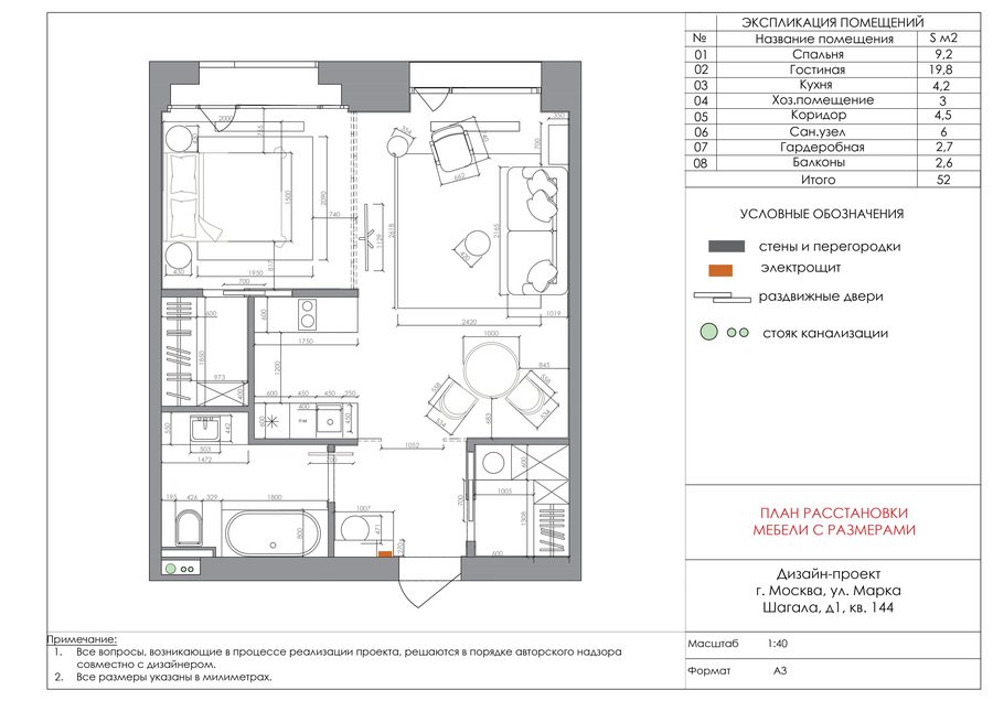
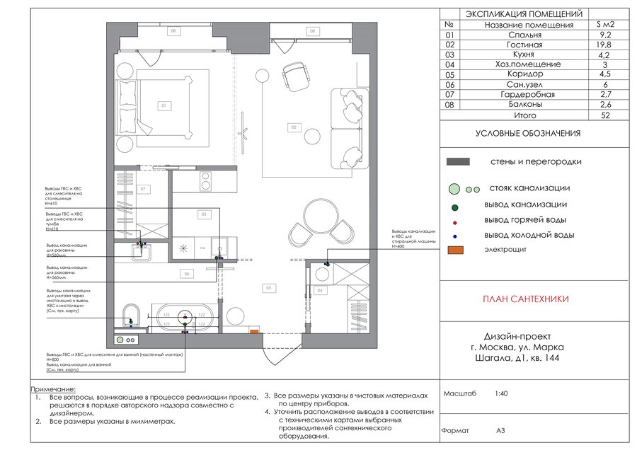
Техническая документация