
Дом Культуры это пространство для художников, в котором можно реализовать свои идеи не отвлекаясь на ежедневную рутину. Индивидуальные рабочие места позволяют взаимодействовать друг с другом, обмениваться опытом и вдохновением. Зачастую художественные мастерские обладают довольно простым интерьером, поэтому удобная и функциональная коворкинг-мастерская станет отличным рабочим местом для художников всех направлений. Мы решили создать функциональную и удобную мастерскую. Пространство, которое легко трансформируется из рабочей зоны в лекторий, позволяет художникам не только реализовывать свои идеи, но и находить единомышленников и создавать творческое коммьюнити.

Зона ресепшн

Ресепшн
Санузел
Рабочая зона/Лекторий
Лекторий
Рабочая зона
Зона мойки
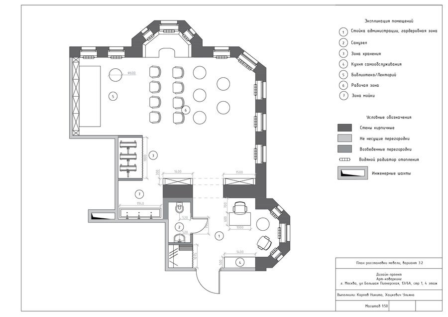
Финальный вариант планировки для различных сценариев использования пространства