
Комплект чертежей шоурума для компании Собиратор, занимающейся переработкой пластика, стекла и бумаги. Главные идеи компании — просвещение людей в теме экологии и переработки и создание большого сообщества, объединенного идеей об экологичном образе жизни.
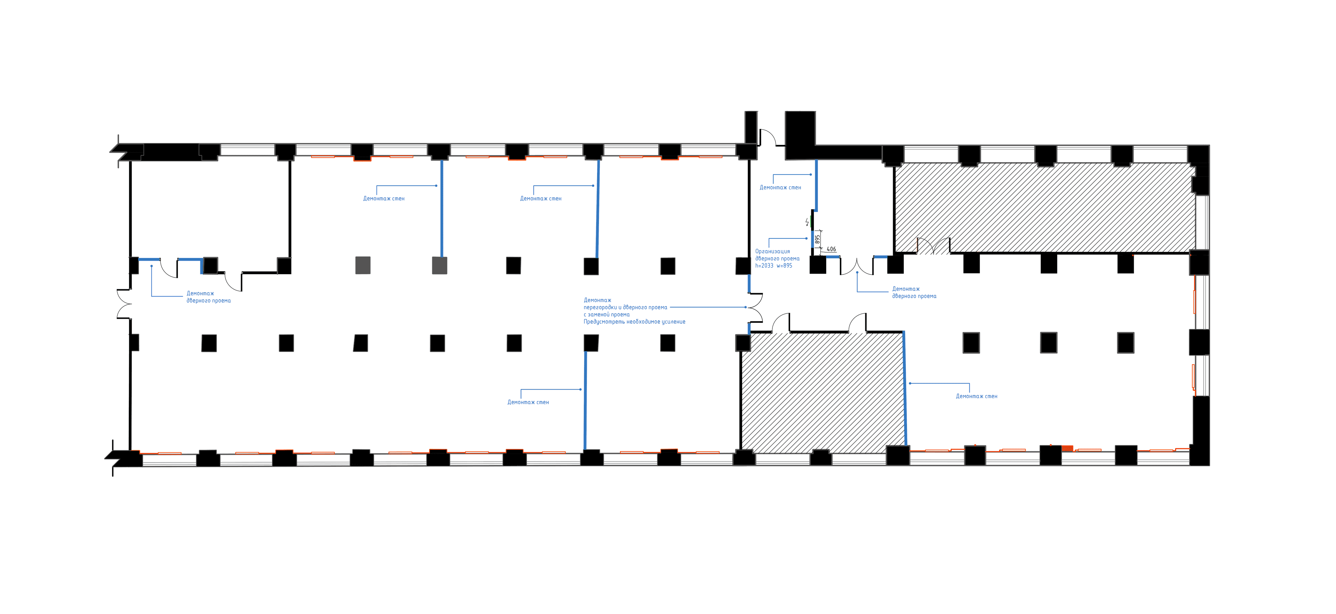
Демонтируемые и монтируемые объекты

Планировочное решение

Маркировка мебели

Аудитория для мастер-классов
Вид на Полезный магазин
Полезный магазин
Мебель индивидуального изготовления
Коворкинг-кафетерий
Диван для коворкинга
Журнальный столик в виде стрелки
Коворк-кабинка для зоны коворкинга
Планы отделки полов, потолков и стен