
[Nova Lume] — в переврде с латинского «новый свет», что символизирует обновление и свежие впечатления, которые кино может подарить зрителям. Кинотеатр предлагает комфортные условия для просмотра фильмов на оригинальном языке.
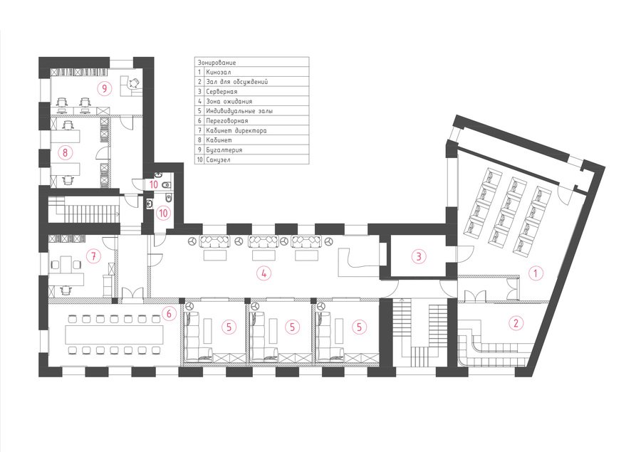
план 1 этажа; план 2 этажа

Входная зона

Зона кафе
Зона ожидания
Кинозал
Индивидуальный кинозал