
Альбом демонстрирует результаты освоения базового функционал программы AutoCAD. Обучение включало в себя выполнение упражнений по созданию орнаментов, геометрических и архитектурных композиций, а так же 2D-чертежей.

Узоры, профили архитектурных обломов и сопряжения геометрических объектов

Декоративные вазы

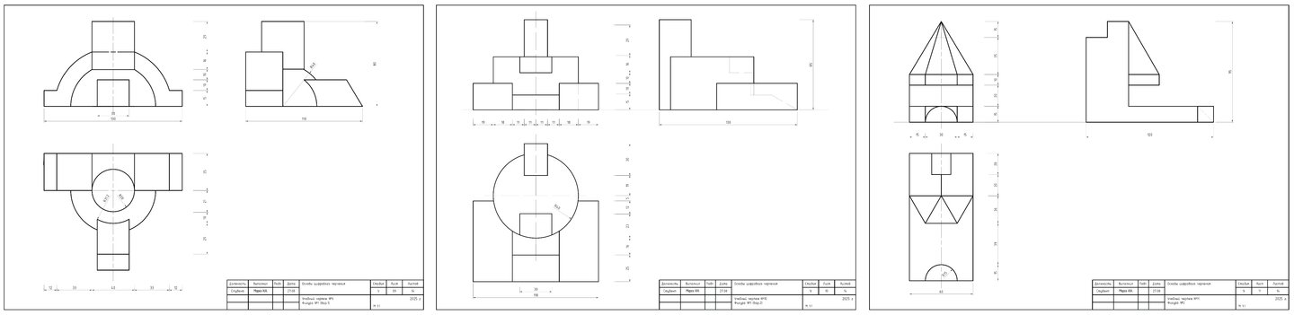
Проекции деталей
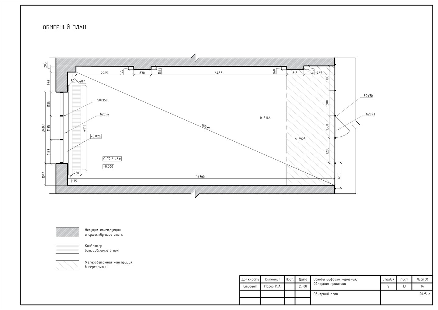
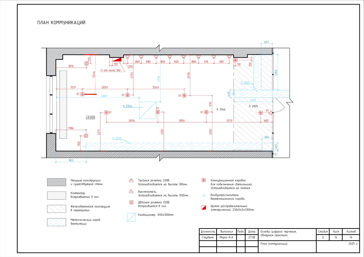
Итоговая работа — пакет документации дизайн-проекта учебного кластера: обмерный план помещения, схема инженерных систем и чертёж с проектным решением по размещению перегородок.
Обмерная практика