
Концепция спа-комплекса «Spelunca» (лат. «пещера») — это создание уникальной атмосферы пещеры с полным эффектом погружения для женщин. Интерьер, имитирующий пещерные развалины с приглушённым светом, переносит гостя в первозданное лоно земли. В небольшом пространстве комплекса разместятся зоны массажа, , баня с купелью и зал для йоги.
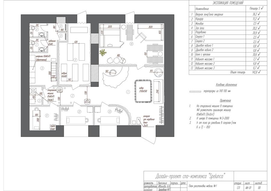
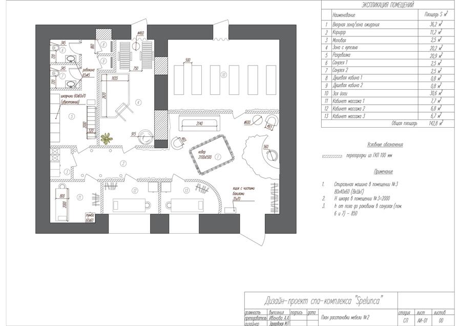
Место: Отель «Magic Harp» (1 этаж), г. Москва ЦА: 18+, жительницы отеля, туристки Функциональное зонирование: Входная зона, зона ожидания и чаепития, баня с купелью, кабинеты для массажа, раздевалка, санузел, моповая

Референсы

Материал борд
Мудборд
План расстановки мебели
Коллажи
Коллаж. Входная зона
Коллаж. Зал йоги
Коллаж. Баня
Коллаж. Кабинет массажа
Рабочая документация
Альбом чертежей