
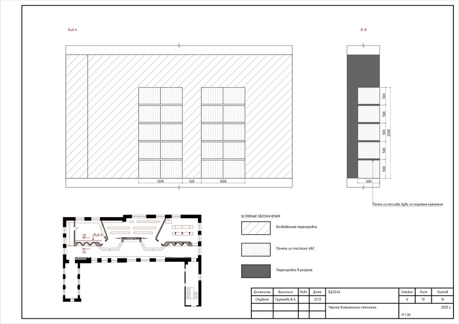
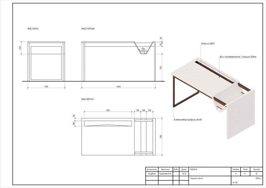
Альбом включает в себя чертежи, созданные с использованием программы AutoCAD, а также визуализации учебного кластера, разработанные в рамках первого модуля. В чертежах представлены планы, виды, разрезы и отдельные элементы мебели для кластера.
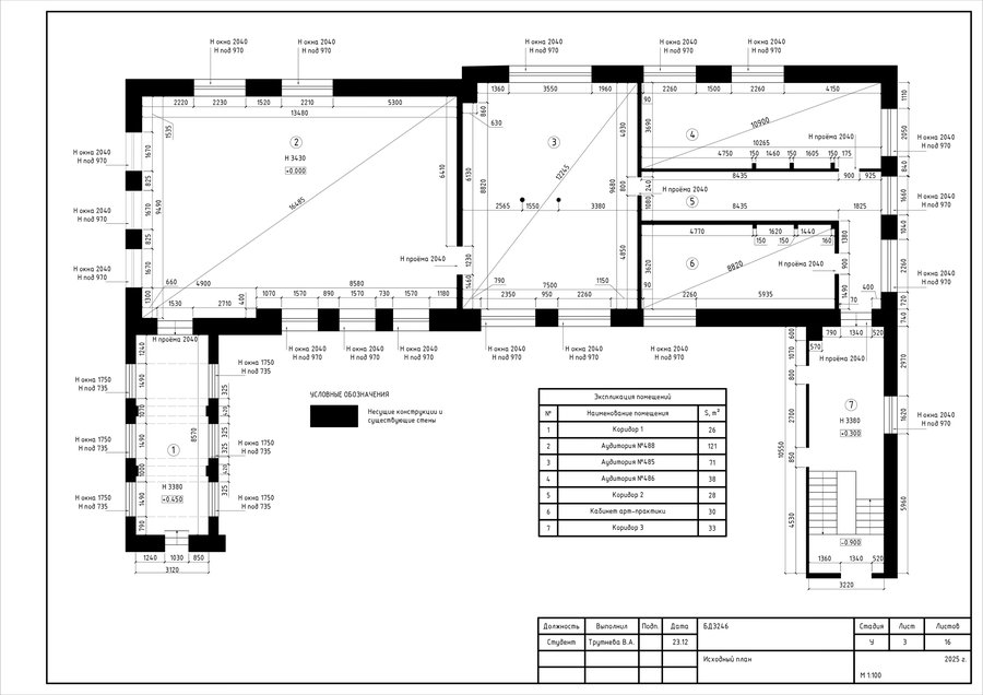
Исходный план
План возводимых перегородок


Визуализации пространства


Визуализации пространства