Альбом чертежей для дизайн-проекта учебного кластера on Deziiign
Original size 736x981

Альбом чертежей для дизайн-проекта учебного кластера

PROTECT STATUS: not protected

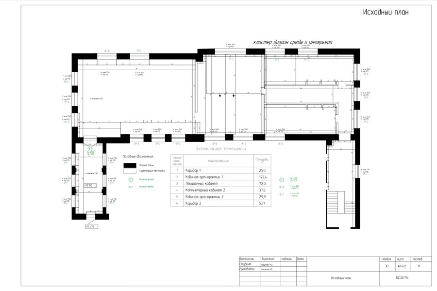
Проект включает в себя создание учебного кластера с использованием AutoCAD. Мы разработали функциональное и эстетичное пространство, оптимизировав планировку и интегрировав современную мебель для удобства студентов.

big
Original size 3000x2000
big
Original size 3000x2000
big
Original size 3000x2000
Original size 3000x2000
Original size 3000x2000
Original size 3000x2000
Original size 3000x2000
Original size 3000x2000
Original size 3000x2000
Original size 3000x2000
Original size 3000x2000
Original size 3000x2000
Original size 3000x2000
Original size 3000x2000