Альбом чертежей дизайн проект учебного кластера on Deziiign
Original size 1240x1750

Альбом чертежей дизайн проект учебного кластера

PROTECT STATUS: not protected

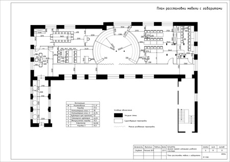
Дизайн-проект был разработан с целью создания уютной атмосферы для учебы. Главной задачей стало обеспечение комфорта для студентов. В оформлении пространства применяются натуральное дерево, светлые тона, акцентные цвета, элементы зелени и стекло для визуального расширения пространства. Стены украшены постерами и декоративными деталями, что добавляет индивидуальности и уюта.

big
Original size 2382x1684
big
Original size 2382x1684
big
Original size 2382x1684
Original size 2382x1684
Original size 2382x1684
Original size 2382x1684
Original size 1191x842